3 bed semi detached house - available now

Baberton Mains Wood, Baberton, Edinburgh EH14

£1550 pcm Online Viewing
  • 3 Double Bedrooms
  • Council Tax Band E
  • Deposit £1550
  • Furnished
  • Long Term Let
  • Private Garden
  • Private Parking
  • No Pets Allowed
  • Living Room
  • Kitchen Diner
  • Bathroom
  • Conservatory
  • Additional WC
  • Double Glazing
  • Shower
  • Main Door Entry
  • Fridge Freezer
  • Washing Machine
  • 3
  • 1
  • Furnished
REF: 2991L: BABERTON MAINS WOOD

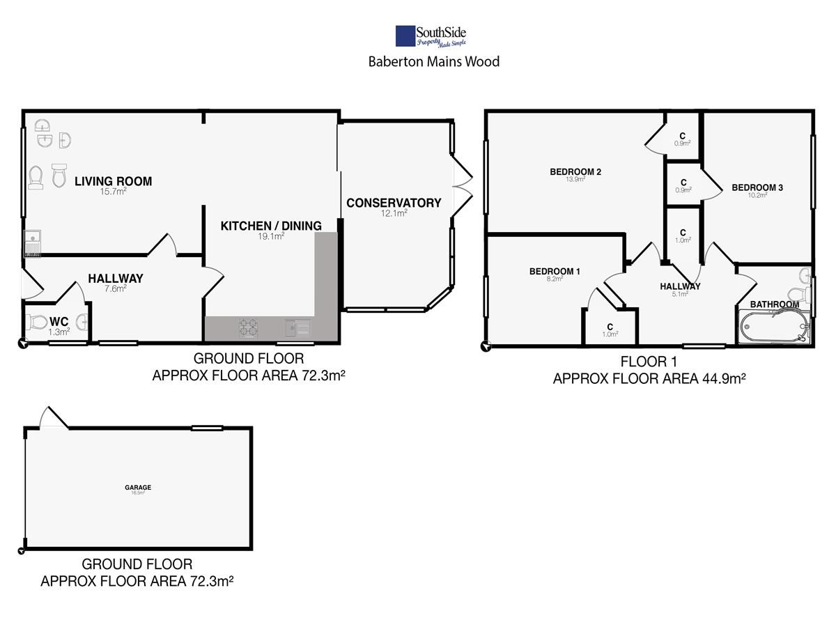
Exceptional, 3 bedroom, semi-detached, family home (not HMO) located on Baberton Mains Wood to the south-west of Edinburgh and with quick availability around Edinburgh via the nearby city bypass. The Gyle Shopping Centre and Hermiston Gait are within easy reach offering shops, supermarkets and eateries. Stevenson College, Juniper Green Primary and Merchiston Castle School are also nearby. This property is in a perfect location for commuting as it offers fantastic links into Edinburgh, Livingston and Glasgow, with the M8 and M9 motorways easily accessible.

The property is extremely well presented throughout. It is available with PART FURNISHED and comprises:
~Beautiful lounge space with laminate flooring, large, bright window and open-access to kitchen/diner
~Stunning kitchen-dining room has contemporary, built-in appliances, plentiful cupboard storage and sliding doors to rear-facing conservatory
~Desirable conservatory offering pleasant views to private rear garden
~3x Neutrally decorated double bedrooms, all with stylish laminate flooring
~Sleek and modern bathroom suite with sprinkler shower over bath
~Additional WC with tiled splashback and wash-hand basin
~Entrance hallway and upper landing
~Sizeable rear garden (tenants to maintain)
~Private front garden (tenants to maintain)
~Private, allocated parking space
~ Garage & loft EXCLUDED
~Double glazing
~Gas heating
~Main door entry
~Sorry, no pets
~Total floor area = 94m²
~Council tax: band E
~EPC rating: C

Available: 7th November 2025

Rent: £1,550pcm
Deposit: £1,550

Please note the photographs shown within this advertisement may have been taken whilst a tenancy was active in the property and as a result you should not rely only on these as an accurate representation of furnishings and items included in the agreement. A full list of which items are included in the property is available upon request from our office, based on a previous tenancy. A viewing is therefore required in order to ensure you have an accurate understanding and knowledge of the condition and contents of the property

Property Reference:
2991L EDI BMW

Landlord Reg No. 523582/230/15052

Letting Agent Reg No. LARN1806025

Loading map...

Primary Schools

Juniper Green
0.6m
Sighthill
0.7m
Westburn
0.9m
Nether Currie
1.0m
Hailesland
1.0m
Murrayburn
1.2m

Secondary Schools

Wester Hailes Education Centre
0.5m
Forrester High
1.6m
St Augustine's High
1.7m
Currie Community High
2.0m
Merchiston Castle
2.7m
Craigmount High
2.8m

Train Stations

Wester Hailes
1.1m
Edinburgh Park
1.4m
South Gyle
1.6m
Kingsknowe
2.2m
Curriehill
2.5m
Slateford
4.0m

Population

Tenure

Employment

*Economically inactive- Student; Looking after home/family; Longterm sick/disabled; other
    EH14 3 (this area)     Scotland
Source: UK Census

Current asking rents in Baberton & nearby areas


1 bed2 bed3 bed4 bed5 bed
Flats-----
Houses-£1,100£1,550--
£ Based on average rent (per calendar month) of long term properties

Most expensive property is £1,550 pcm • Least expensive property is £1,100 pcm

0131 572 0183
20 Nicolson Street Edinburgh EH8 9DH
Like most sites, Citylets uses cookies mainly to enhance user experience. By using our site we'll assume you're ok with our cookies policy.