2 bed flat - available now

Bank Street, Hillhead, Glasgow G12

£1350 pcm Online Viewing
  • Online Viewing
  • Council Tax Band C
  • Deposit £2025
  • Gas Central Heating
  • Long Term Let
  • Part Furnished
  • Zone/Permit Parking
  • No Smoking
  • Pets Allowed
  • Bathroom
  • Shower
  • Fridge Freezer
  • Washing Machine
  • 2
  • 1
  • Part Furnished
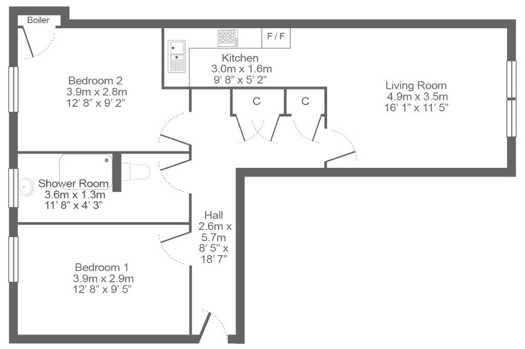
Well presented two bedroom part furnished second floor flat located in popular Bank Street in Glasgow's West End.

Located within easy walking distance of Great Western Road and Byres Road, this second floor traditional tenement flat offers bright and spacious accommodation in a popular area of the West End with a great selection of bars, restaurants and local shopping nearby.

The building is entered into via secure entry system and the flat is located on the second floor which is accessed only via stairs. Internally, there is a spacious 'L' shaped hallway with good storage, two good sized double bedrooms, spacious and modern open plan living room / kitchen which comes complete with appliances including fridge freezer, washing machine, ceramic hob and electric oven. Finally, the shower room completes the accommodation and features white ceramics with walk-in shower area with a mains powered shower.

The property further benefits from WIFI included, gas central heating, secure entry system, good storage and excellent West End location.

Public transport links are excellent in this area with Kelvinbridge Underground 5 minutes`walk and busy bus route to the City Centre. EPC rating: C. Landlord Registration Number: 1537006/260/01022.

Letting Agent Reg No. LARN2002011

Loading map...

Primary Schools

Hillhead
0.3m
The Glasgow Academy
0.3m
Willowbank
0.5m
St Charles'
0.5m
Glasgow Steiner
0.8m
Dunard
0.8m

Secondary Schools

Hillhead High
0.1m
The Glasgow Academy
0.3m
St Thomas Aquinas Secondary
0.7m
Kelvinside Academy
1.0m
Notre Dame High
1.1m
St Aloysius College
1.5m

Train Stations

Exhibition Centre
0.7m
Maryhill
1.3m
Anderston
1.4m
Charing Cross
1.4m
Gilshochill
1.6m
Hyndland
1.7m

Population

Tenure

Employment

*Economically inactive- Student; Looking after home/family; Longterm sick/disabled; other
    G12 8 (this area)     Scotland
Source: UK Census

Current asking rents in Hillhead


1 bed2 bed3 bed4 bed5 bed
Flats£782£1,408£2,127£2,750£3,687
Houses-----
£ Based on average rent (per calendar month) of long term properties

Most expensive property is £5,400 pcm • Least expensive property is £500 pcm

0141 768 0810
34 Gibson Street Glasgow G12 8NX
Like most sites, Citylets uses cookies mainly to enhance user experience. By using our site we'll assume you're ok with our cookies policy.