THIS PROPERTY IS NO LONGER AVAILABLE

4 bed flat - NOW LET

Dalkeith Road, Newington, Edinburgh EH16

£1995 pcm Online Viewing
  • 4 Double Bedrooms
  • Council Tax Band D
  • Deposit £2450
  • Furnished
  • Gas Central Heating
  • Long Term Let
  • Street Parking
  • Traditional Building Style
  • No Smoking
  • No Pets Allowed
  • Living Room
  • Kitchen
  • Bathroom
  • Double Glazing
  • Shower
  • Fridge Freezer
  • Microwave
  • Washing Machine
  • 4
  • 1
  • Furnished
**BOOK VIEWINGS ONLINE AT GLENHAM PROPERTY WEBSITE** Traditional top floor 4 bed HMO property in great location with local amenities and fantastic green spaces such as Holyrood Park and Peffermill Playing Fields within walking distance.

Fantastic Introductory Offer

**£1,995 pcm for the first 3 months ? £2,450 pcm thereafter**

Terms and conditions apply please contact the agent to confirm eligibility and full details.

This bright and spacious four-bedroom HMO flat is ideal for students looking for a comfortable and sociable home in a great location. The property consists of four double bedrooms, a large living room perfect for relaxing or hanging out with flatmates, a separate kitchen with dishwasher and a bathroom with shower. The property benefits from gas central heating and double glazing.

Situated to the south of the city centre, Newington is a prime area for many types of residents. Both the University of Edinburgh King’s Buildings complex and the Edinburgh Royal Infirmary are close by. City Centre and Old Town being within walking distance allowing easy access to a wider range of facilities including the popular Prince Street and Royal Mile.

Please Note - the successful applicant will be required to pay a fully refundable Holding Deposit of £400 whilst the referencing is undertaken - this will be deducted from your final deposit payment.

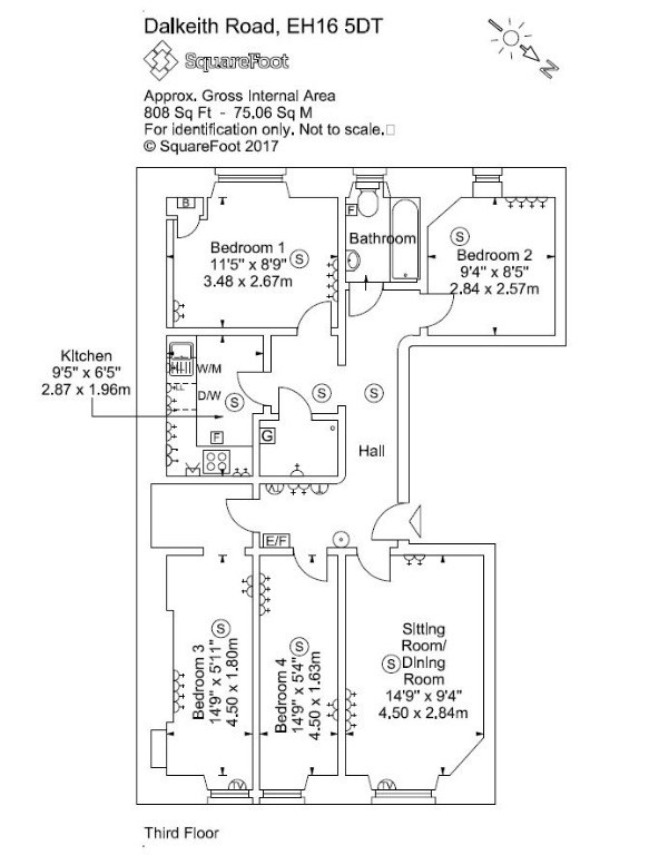
Room Sizes:
Living room: 4.50m X 2.84m, Kitchen 2.87m X 1.96m, Bedroom one 3.48m X 2.67m Bedroom two 2.84m X 2.57m Bedroom three 1.80m X 4.50m Bedroom four 1.63m X 4.50m

Council Tax: D
EPC: C
Water: Mains
Sewerage: Mains
Broadband: Fibre optic, G-fast
Mobile reception: Good
Construction type: Stone, pitched tiled roof
Parking: On street permit


*Please note the photographs within this advertisement may have been taken during a previous tenancy and as a result you should not rely only on these as an accurate representation of furnishings and items included in the agreement. A viewing is required to ensure you have an accurate understanding of the condition and contents of the property.

Landlord Reg No. 1792928/230/20112

Letting Agent Reg No. LARN:1811020

Loading map...

Primary Schools

St Margaret's
0.3m
Prestonfield
0.6m
Liberton
0.7m
Preston Street
0.8m
St John Vianney
1.1m
Regius
1.1m

Secondary Schools

St Margaret's
0.3m
Liberton High
1.6m
Holy Rood RC High
1.7m
Mannafields Christian
2.0m
Gracemount High
2.1m
George Heriot's
2.2m

Train Stations

Edinburgh
2.1m
Haymarket
3.7m
Brunstane
4.6m
Slateford
5.0m
Newcraighall
5.7m
Musselburgh
6.2m

Population

Tenure

Employment

*Economically inactive- Student; Looking after home/family; Longterm sick/disabled; other
    EH16 5 (this area)     Scotland
Source: UK Census

Current asking rents in Newington


1 bed2 bed3 bed4 bed5 bed
Flats£1,135£1,497£2,200£3,033£3,815
Houses-----
£ Based on average rent (per calendar month) of long term properties

Most expensive property is £4,250 pcm • Least expensive property is £1,050 pcm

Like most sites, Citylets uses cookies mainly to enhance user experience. By using our site we'll assume you're ok with our cookies policy.