3 bed flat - available 15/06/26

Caird Drive, Partick, Glasgow G11

£1875 pcm Online Viewing
  • Council Tax Band C
  • Deposit £1875
  • Furnished
  • Gas Central Heating
  • Long Term Let
  • Zone/Permit Parking
  • Pets Allowed
  • Bathroom
  • HMO Licenced
  • West End Location
  • Second Floor
  • Close to Glasgow University
  • Near Byres Road
  • Quiet Street
  • Near Kelvinhall Subway
  • Secure Entry
  • Gas Central Heating
  • Shower
  • Washing Machine
  • 3
  • 1
  • Furnished
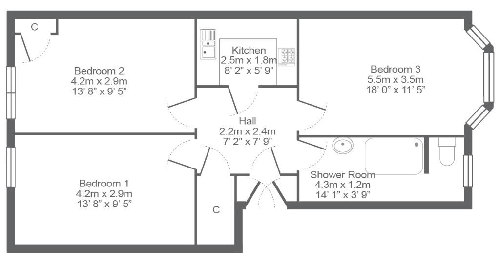
Cairn is delighted to present this well-maintained three-bedroom HMO licensed flat located on Caird Drive.

The accommodation comprises: entrance hallway with storage cupboard, three fully furnished double bedrooms, internal kitchen, and bathroom with electric shower. Each bedroom is fully furnished with a bed, wardrobe, chest of drawers, desk, and chair. The property further benefits from secure entry system and gas central heating throughout.

Caird Drive is ideally situated close to Glasgow University, Kelvinhall subway station, and a wide range of local amenities including bars, restaurants and cafe's.

Available from mid-June 2026.

To arrange a viewing, please submit your request online and a member of our team will be in touch.

EPC Rating: C EPC rating: C. Landlord Registration Number: 15954/260/30260.

Letting Agent Reg No. LARN2002011

Loading map...

Primary Schools

St Peter's
0.2m
Dowanhill
0.4m
Hyndland
0.4m
Notre Dame
0.5m
Kelvinhaugh
0.8m
Kelvinside Academy
0.9m

Secondary Schools

Hyndland Secondary
0.5m
Notre Dame High
0.5m
Cleveden Secondary
0.9m
Kelvinside Academy
0.9m
Hillhead High
1.4m
The Glasgow Academy
1.7m

Train Stations

Hyndland
0.4m
Partick
0.4m
Maryhill
1.2m
Kelvindale
1.5m
Anniesland
1.6m
Exhibition Centre
1.7m

Population

Tenure

Employment

*Economically inactive- Student; Looking after home/family; Longterm sick/disabled; other
    G11 5 (this area)     Scotland
Source: UK Census

Current asking rents in Partick & nearby areas


1 bed2 bed3 bed4 bed5 bed
Flats£931£1,412£1,925£2,850-
Houses-£1,600£2,460--
£ Based on average rent (per calendar month) of long term properties

Most expensive property is £3,000 pcm • Least expensive property is £650 pcm

0141 768 0810
34 Gibson Street Glasgow G12 8NX
Like most sites, Citylets uses cookies mainly to enhance user experience. By using our site we'll assume you're ok with our cookies policy.