5 bed terraced house

UNDER OFFER - Ellice Place, St Andrews, Fife KY16

£5590 pcm Online Viewing
  • Deposit £500
  • Furnished
  • Gas Central Heating
  • Long Term Let
  • Parking
  • 5
  • Furnished
STUDENT ACCOMMODATION 2026-2027
AVAILABLE 24th JUNE 2026
Deposit £500
“Advertised price includes electricity, gas (where applicable), TV Licence, and broadband internet”
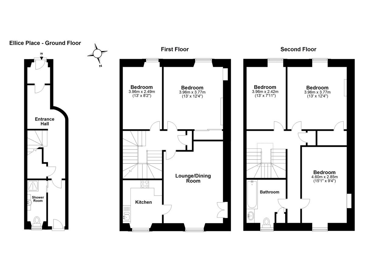
Town Centre. HMO, 5 bedrooms, 1 Bathroom, 1 Shower Room, Kitchen, Lounge/Dining Area. EPC: D.
Landlord Registration: 331063/250/31591
Council Tax Band: E
Additional costs: council tax (if applicable)
Heating Type: Gas Central Heating
Property Floor: First and second floor
Utilities: Credit Meter.
Electricity and Gas Supplier: UniHomes
Broadband Supplier: UniHomes (Fibre where available)
Parking Type: None available
Sewerage: Mains
Scottish Letting Agent Registration Number: LARN1812026
Planning permission: Please check this properties local authority planning website for any planning which may impact the property or local area in future
All statements contained herein are believed to be correct but are not guaranteed and interested parties must satisfy themselves as to their accuracy.
Loading map...

Primary Schools

St Leonards
0.8m
Greyfriars R C
0.9m
Langlands
0.9m
New Park
1.0m
Canongate
1.0m
Lawhead
2.0m

Secondary Schools

Madras College
0.3m
St Leonards
0.8m
New Park
1.0m
Monifieth High
9.8m
Grove Academy
10.4m
Waid Academy
10.5m

Train Stations

Leuchars
6.9m
Monifieth
9.6m
Balmossie
9.6m
Broughty Ferry
9.8m
Golf Street
12.1m
Carnoustie
13.0m

Population

Tenure

Employment

*Economically inactive- Student; Looking after home/family; Longterm sick/disabled; other
    KY16 9 (this area)     Scotland
Source: UK Census

Current asking rents in St Andrews & nearby areas


1 bed2 bed3 bed4 bed5 bed
Flats£1,148£1,576---
Houses-£1,460--£5,590
£ Based on average rent (per calendar month) of long term properties

Most expensive property is £5,590 pcm • Least expensive property is £120 pcm

01334 800630
73 South Street, St Andrews Fife KY16 9QW
Like most sites, Citylets uses cookies mainly to enhance user experience. By using our site we'll assume you're ok with our cookies policy.