THIS PROPERTY IS NO LONGER AVAILABLE

2 bed flat - NOW LET

Colinton Mains Drive, Colinton Mains, Edinburgh EH13

£975 pcm Online Viewing
  • Council Tax Band C
  • Deposit £1175
  • Gas Central Heating
  • Long Term Let
  • Private Parking
  • Unfurnished
  • No Smoking
  • Bathroom
  • Double glazing
  • Shower
  • Fridge Freezer
  • Washing Machine
  • 2
  • 1
  • Unfurnished
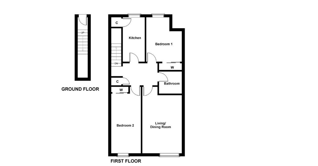
Well-presented and well maintained two bedroom upper flat situated in the Colinton Mains residential area, lying a few miles south of Edinburgh city centre, well serviced by local buses and within walking distance of local shops, a primary school and secondary school. Presented to the market unfurnished the property is comprised of: A spacious internal hall at first floor level, serving all rooms and with a deep shelved storage cupboard. A generously proportioned living room with ample dining space and window offering views to the Pentland Hills. A large double bedroom set quietly to the rear, with fitted wardrobe. A second double bedroom facing the front, with fitted wardrobe. A modern kitchen with fitted units and appliances. Finally, there is a good-sized internal bathroom with three-piece suite including over-bath shower. Further benefits include gas central heating, double glazing and residents parking.

Hall - 2.95m x 1.95m
Living / Dining Room - 5.65m x 3.32m
Bedroom 1 - 3.76m x 2.78m
Bedroom 2 - 5.65m x 2.40m
Kitchen - 3.73m x 1.90m
Bathroom - 1.98m x 1.75m

Colinton Mains Drive forms part of a mature estate only a few minutes away from a Tesco supermarket and modern Firrhill School. It is a well-established district straddling the B701 just a little to the south of the historic 'village' of Colinton. Easy access is gained to natural parkland, golf course and the Pentland Hills which create a dramatic backdrop. Numerous recreational/social facilities are close by and excellent public transport link to the City Centre



EPC rating: C. Landlord Registration Number: 193699/230/07380. Letting Agent Registration Number: 2001001.
Loading map...

Primary Schools

St Mark's
0.2m
Oxgangs
0.6m
Colinton
0.6m
Pentland
0.7m
South Morningside
1.5m
Craiglockhart
1.6m

Secondary Schools

Firrhill High
0.7m
George Watson's College
1.7m
Merchiston Castle
1.7m
Rudolf Steiner of Edinburgh
1.7m
Tynecastle High
2.1m
Boroughmuir High
2.5m

Train Stations

Slateford
1.2m
Kingsknowe
2.4m
Haymarket
2.7m
Wester Hailes
3.4m
Edinburgh
4.1m
South Gyle
4.8m

Population

Tenure

Employment

*Economically inactive- Student; Looking after home/family; Longterm sick/disabled; other
    EH13 9 (this area)     Scotland
Source: UK Census

Current asking rents in Colinton Mains & nearby areas


1 bed2 bed3 bed4 bed5 bed
Flats-£1,355£2,075£1,600£2,295
Houses--£1,500£2,400-
£ Based on average rent (per calendar month) of long term properties

Most expensive property is £2,400 pcm • Least expensive property is £1,100 pcm

Like most sites, Citylets uses cookies mainly to enhance user experience. By using our site we'll assume you're ok with our cookies policy.